-
Reesink HoveniersTuinontwerp, tuinaanleg en tuinonderhoud sinds 1982 -
Grond- en straatwerkAltijd een goede prijs-prestatieverhouding! -
TuinonderhoudVoor particulier, instellingen en bedrijven -
Boomverzorging
Rooien en snoeienOok op de meest moeilijke plaatsen -
ParkonderhoudRuim 30 jaar ervaring in parkbeheer -
Natuursteen in de tuinNatuurstenen bestrating aanleggen -
HoutbouwTuinhuisjes, blokhutten, schuttingen of maatwerk... -
Nieuwe Trends voor in de tuinLaat u informeren -
Machine verhuur voor de groenbranche
Tuinontwerp
Op ons kantoor is een tuinontwerpbureau aanwezig. Het ontwerpen gebeurd bij ons volgens het “old school” principe. Dit wil zeggen dat na het inventariseren van de wensen van een klant eerst een tuinschets wordt gemaakt, dus een soort praatplaatje. Deze schetsen worden u geheel gratis aangeboden, net zolang tot het schetsontwerp geheel naar wens is.
Wij hanteren o.a. de volgende richtlijnen: – Ontwerpen is de kunst van het weglaten. – Elk onderdeel in het ontwerp is functioneel; het waarom leidt automatisch tot een waartoe. – Het ontwerp proberen wij overzichtelijk te maken, ook door een juist gebruik van kleur. – Naar wens wordt er meer diepte gegeven door het creëren van zichtassen. Dit zijn zomaar een aantal richtlijnen die door ons worden toegepast in alle denkbare ontwerpen in cottage, terrastuinen, kubussentuinen, boerentuinen, klassieke tuinen, landschapstuinen, patio tuinen, tuinen met wilde flora, etc. Een beplantingsplan in al deze voorbeelden, een ontwerp in 3-D of in “vogelvlucht” kan door ons tegen vergoeding worden opgemaakt.
Laden…
Categorie: Tuinontwerpen
Sorteer op: Volgorde item
-
Tuinaanleg aan het water uitgevoerd naar een tuinontwerp van Reesink Hoveniers
Tuinaanleg Reesink Hoveniers heeft deze tuinaanleg aan het water gerealiseerd met flonder (E), een nieuw gazon (C), bestrating (B) bestaande uit Oud Hollandse tegels antraciet 100 x 100 gecombineerd met dikformaat betonklinkers antraciet(D) en een groentetuin (B). Deze tuin is aangelegd aan een gracht, de vlonder is aan het water verlaagd en bereikbaar via een […]
-
tuinontwerp
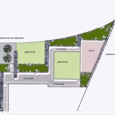
Tuinontwerp Tuinontwerp voor nieuwe aanleg in de Polderwijk van Zeewolde. (December 2015.) In dit tuinontwerp heeft Reesink Hoveniers gekozen voor de aanleg van twee terrassen. Een zonneterras en een schaduwterras verbonden door straatwerk langs de achtergevel. Door de geringe diepte in de tuin en juist de aanwezige breedte wordt je als het ware gedwongen voor […]
-
Creatieve tuinontwerpen
Creatieve tuinontwerpen Reesink Hoveniers heeft creatieve tuinontwerpen gemaakt waarbij ingespeeld is op de onderhoudswensen van de tuin zelf. De oude (bestaande) tuin vraagt te veel onderhoud door de aanwezigheid van bodem bedekkende vaste planten waardoor toch nog hardnekkig onkruid groeit. In combinatie van een nieuwe tuinaanleg met specifieke onderhoudsmethoden die in de afgelopen 35 jaar […]
-
tuinontwerpen
Tuinontwerpen Reesink Hoveniers
-
Tuinaanleg Flevonatuur
Tuinaanleg Flevonatuur Een schetsontwerp voor een geheel nieuwe tuinaanleg Flevonatuur. De huidige situatie betreft een tuin van ca. 250 m2 bestaande uit hoofdzakelijk gazon met plantenborders. De opdracht bestaat uit het verwijderen van het gazon, de aanleg van een vijver grenzend aan een bestaand terras, beslotenheid creëren door beukenhagen, het opnemen van twee zitjes. Daarbij […]
-
Tuinontwerp en tuinontwerpbureau Almere
Tuinontwerp en tuinontwerpbureau Almere. Omdat wij schetsontwerpen aanbieden kunnen wij de kosten voor u beperken tot nul. Wij bieden u graag een creatief en slim doordacht ontwerp aan die getoetst is aan de praktijk. Onze ontwerper is 35 jaar lang ervaren in het ontwerpen van tuinen waarbij het ontwerp direct getoetst wordt aan praktische omstandigheden. […]
-
Tuinontwerp Amstelveen
Tuinontwerp Amstelveen In dit ontwerp heeft Reesink Hoveniers als opdracht gekregen de drie afvalcontainers in de voor tuin achter groen weg te werken. Daarbij moet er een mogelijkheid komen voor het plaatsen van één of twee fietsen, de uitloop naar de straat voor de kinderen moet belemmerd worden en het lieftst gebruik maken met gebogen […]
-
Tuinontwerp Reesink Hoveniers
Tuinontwerp Reesink Hoveniers Reesink Hoveniers heeft een schetsontwerp gemaakt voor een achtertuin. De huidige achtertuin bestaat uit een houten vlonder in de volle breedte en verdiept uit een hoek bestrating. Dit alles wordt gewijzigd en daarom ook gerenoveerd. Door het hoogteverschil d.m.v. een trappetje tussen twee verhoogde bloembakken weg te werken ontstaat er enerzijds een […]
-
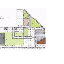
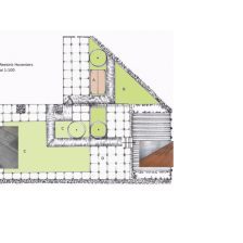
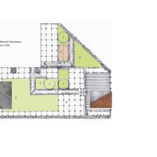
Tuinontwerp Zeewolde schetsvoorstel
Tuinontwerp Zeewolde schetsvoorstel
-
Tuinontwerp Almere
Tuinontwerp Almere Ons tuinontwerpbureau verzorgd sinds 1982 creatieve tuinontwerpen. Op de homepage is de slogan “creatief in maatvoering” genoemd. En daar ligt nu juist de kern van een goed ontwerp. Zonder goede maatvoering mist een ontwerp en daarna de gerealiseerde tuin “balans.” Een goed evenwicht in maatvoering begint bij het verdelen van het oppervlak van […]
-
Tuinontwerp en beplantingsplan
Tuinontwerp en beplantingsplan
-
Tuinontwerp en realisatie Zeewolde
Tuinontwerp en realisatie Zeewolde Tuinontwerp en realisatie Zeewolde door Reesink Hoveniers. Opdracht is een kindvriendelijke tuin te creëren met als basis kunstgras. Daartoe wordt een geheel verharde tuin veranderd in een kindvriendelijke tuin met speelgelegenheid op kunstgras. De huidige bloembakken worden afgebroken en met dezelfde materialen van natuursteen wordt één bloembak terug geplaatst. Precies op […]
-
Tuinontwerp Soest park Residence Soevereine
Tuinontwerp Soest park Residence Soevereine Op bijgaande foto het resultaat na een tuinrenovatie uitgevoerd door Reesink Hoveniers in 2014. Op de voorgrond sierappels, wit bloeiend vanaf eind april tot eind mei. Op de achtergrond een groep sierkersen, roze bloeiend in april. Beide groepen bomen bloeien dus na elkaar. Tussen de boomgroepen door slingert nu een […]
