Tuinaanleg
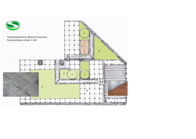
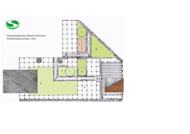
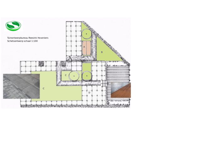
Reesink Hoveniers heeft deze tuinaanleg aan het water gerealiseerd met flonder (E), een nieuw gazon (C), bestrating (B) bestaande uit Oud Hollandse tegels antraciet 100 x 100 gecombineerd met dikformaat betonklinkers antraciet(D) en een groentetuin (B). Deze tuin is aangelegd aan een gracht, de vlonder is aan het water verlaagd en bereikbaar via een trappetje. Het tuinontwerp is aangepast naar de wensen van de klant, de kas is bijvoorbeeld komen te vervallen omdat een onderhoudsvrije tuin toch hoger op het verlanglijstje stond. Om direct al een volwassen tuin te creëren zijn volwassen appel- en perenbomen aangeplant. Langs de tuin was al een hoge volwassen laurierhaag aanwezig, die samen met de aanplant van de grote fruitbomen sterk bepalend zijn voor de “groensfeer”in de tuin. Om de bijna drie meter hoge laurierhaag goed te kunnen snoeien is langs de laurierhaag bestrating aangelegd. Ook wordt de bereikbaarheid van de terrassen onderling hierdoor verbeterd. Tijdens de tuinaanleg is een compleet lichtplan verwerkt. In de grote tegels zelf zijn grondspots verwerkt en de fruitbomen zijn met opstaande spots belicht.
Voor meer tuinideeën ga naar: tuinontwerpen. Bezoek ook eens de pagina referenties.
